土地物件
![]() |
1,500万円 |
| 所在地枚方市長尾峠町 | |
京阪本線 「樟葉」駅バス18分「峠」降車 徒歩5分 |
| 所在地 | 大阪府枚方市長尾峠町 |
|---|---|
| 交通 | 京阪本線 「樟葉」駅 バス18分「峠」降車 徒歩5分 |
| 価格 | 1,500万円 |
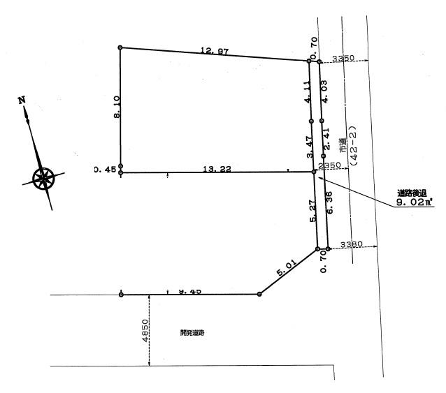
| 種別 | 土地 | 方位 | |
|---|---|---|---|
| 土地面積 | 105.34m2(31.86坪) | 建物面積 | |
| 築年月 | 建物構造 | ‐ | |
| 建ぺい/容積率 | 60%/200% | 駐車場 |
| 小学校区 | 長尾小学校 | 中学校区 | 長尾中学校 |
|---|---|---|---|
| 用途地域 | 第1種住居地域 | 都市計画 | 市街化区域 |
| 土地権利 | 所有権 | 地目 | 宅地 |
| 建築確認番号 | 建築条件 | なし | |
| 私道負担 | 接道状況 | 東3.3m | |
| 取引態様 | 仲介 | 現況/引き渡し | 更地/相談 |
| 周辺環境 | コンビニ スーパー 病院 銀行 郵便局 小学校 中学校 |
|---|






京阪本線 「樟葉」駅






